
রেক্সি উইন্ডো ওয়াল সিস্টেমটিতে সাধারণ পর্দার প্রাচীরের তুলনায় তাপ নিরোধক এবং শক্তি সাশ্রয় কর্মক্ষমতা রয়েছে, এর সবগুলি কারণ উইন্ডো ওয়াল সিস্টেমটি সাধারণ পর্দার প্রাচীরের তুলনায় অনেক বেশি যা উইন্ডো-প্রাচীর অনুপাত যা মোট ক্ষেত্রের অনুপাতকে বোঝায় বাহ্যিক উইন্ডোজ একই দিকে বাহ্যিক প্রাচীরের মোট ক্ষেত্রের একদিকে।
গ্লোবাল ওয়ার্মিংয়ের সাথে, বিল্ডিং এনার্জি খরচ জলবায়ু উষ্ণায়নের একটি গুরুত্বপূর্ণ কারণ, সুতরাং কীভাবে বিল্ডিং এনার্জি সেভিং ডিজাইন করা যায় তা খুব গুরুত্বপূর্ণ শক্তি সাশ্রয় এবং নির্গমন হ্রাস ব্যবস্থায় পরিণত হবে, এই কাগজে প্রবর্তিত চীন বিল্ডিং উইন্ডো ওয়াল সিস্টেম একটি ভাল সমাধান হবে।
একই পরিস্থিতিতে, রেক্সি উইন্ডো ওয়াল সিস্টেমটিতে সাধারণ পর্দার প্রাচীরের তুলনায় আরও ভাল তাপ নিরোধক এবং শক্তি সাশ্রয় কর্মক্ষমতা রয়েছে, এর সবগুলি কারণ উইন্ডো ওয়াল সিস্টেমটি সাধারণ পর্দার প্রাচীরের তুলনায় অনেক বেশি যা উইন্ডো-ওয়াল অনুপাত যা অনুপাতকে বোঝায় এক দিক থেকে বাহ্যিক উইন্ডোজের মোট ক্ষেত্রের একই দিকের বাইরের প্রাচীরের মোট ক্ষেত্রের দিকে।
কারণ সিস্টেমের পার্থক্য, স্ট্যান্ডার্ড গ্লাস উইন্ডো ওয়াল সিস্টেমের তুলনায় আরও রেক্সি বিল্ডিং বহিরাগত প্রাচীর অঞ্চল, এবং বহি প্রাচীর তাপ নিরোধক কর্মক্ষমতা নির্মাণ উইন্ডোজ এবং দরজা পর্দা প্রাচীর যে কোন ধরণের যা তাপের সাথে বাইরের ফুটো নির্মাণ বাইরের প্রাচীর তুলনায় ভাল নিরোধক উপকরণ, তাপ সংরক্ষণ এবং তাপ নিরোধক সামগ্রিক কর্মক্ষমতা উন্নত করতে পারে, যাতে শক্তি সঞ্চয় প্রভাব অর্জন করতে।


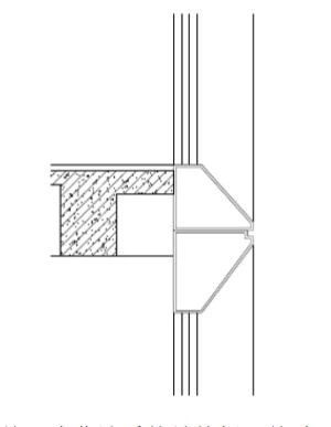
সাধারণ পর্দা প্রাচীর সিস্টেম উইন্ডো ওয়াল সিস্টেম
উপরের চিত্রটি থেকে স্পষ্টভাবে দেখা যায় যে বিভিন্ন ইনস্টলেশন পদ্ধতির কারণে উইন্ডো ওয়াল সিস্টেমটি মূল ভবনের অভ্যন্তরে ইনস্টল করা হয় এবং ভবনের মূল প্রাচীরটি বাইরে প্রকাশিত হয়। প্রাচীরের এই অংশটি তাপ নিরোধক রক উলের সাথে ইনস্টল করা যেতে পারে, যাতে তাপ নিরোধকের কার্যকারিতা অর্জন করতে পারে।
একই সময়ে, রেক্সি উইন্ডো এবং প্রাচীর সিস্টেম অবাধে কাচের কনফিগারেশন এবং ভাঙ্গা সেতু অ্যালুমিনিয়াম খাদ মডেল দিয়ে নির্বাচন করা যেতে পারে, তিন গ্লাস দুটি গহ্বর নিম্ন-ই গ্লাস ব্যবহার করে তাপ নিরোধক কার্যকারিতা উন্নত করতে পারে, অ্যালুমিনিয়াম প্রোফাইলগুলির প্রশস্ত প্রস্থ বিল্ডিংয়ের অভ্যন্তর থেকে তাপের ক্ষতি হ্রাস করতে এবং বাইরে থেকে তাপমাত্রার পার্থক্যের প্রবেশকে কমিয়ে আনার জন্য ইনসুলেশন উপাদান যুক্ত করা হয়, যাতে শীতকালে উষ্ণতার প্রভাব অর্জন করতে এবং গ্রীষ্মে শীতল হওয়ার জন্য বিল্ডিং অভ্যন্তরটি পাওয়া যায়।


গরম ট্যাগ: উইন্ডো ওয়াল সিস্টেমের পারফরম্যান্স, চীন, সরবরাহকারী, নির্মাতারা, কারখানা, দাম





