
পর্দার প্রাচীরের চলাচল সুরক্ষিত করার জন্য মেঝে ইনস্টল করার সময় যথাযথ প্রসারণের ব্যবধান বজায় রাখা অত্যন্ত গুরুত্বপূর্ণ Xআরএক্সআই শিল্প স্থানটি কীভাবে গণনা করতে হবে সে সম্পর্কে পেশাদার পরামর্শ দেয়।
জাতীয় পর্দার ওয়াল ফলক কোড অনুসারে, পর্দা প্রাচীর ফ্যাডে সিস্টেমের নির্দিষ্ট গতিবিধির ক্ষমতা থাকা উচিত। সুতরাং প্রসারণের ব্যবধানটি দুটি তলগুলির মধ্যে নির্ধারণ করা দরকার যা পর্দার প্রাচীরের উপযুক্ত গতিবিধি নিশ্চিত করতে পারে। প্রসারণের ব্যবধানটি সেখানে চলাচলের প্রয়োজনীয়তার সাথে খাপ খায়। প্রথমটি হ'ল মুলিয়নের তাপমাত্রা বিকৃতি। দ্বিতীয়টি হ'ল প্রকল্পের কিস্তি চলাকালীন নির্মাণের ত্রুটি। তৃতীয়টি হ'ল অক্ষীয় সংকোচনের বিকৃতি যখন পর্দার প্রাচীর উল্লম্ব লোড বহন করে।
সারসংক্ষেপে, রেক্সআই ইন্ডাস্ট্রির সংস্থা চীন জাতীয় কোড অনুযায়ী সম্প্রসারণ যৌথ গণনা করতে নীচের হিসাবে গণনার সূত্রটি প্রস্তাব করে।

---- ------ মুলিয়নের জন্য রৈখিক প্রসারণের সহগ;
- টি ----- বার্ষিক তাপমাত্রা পরিবর্তনের মান;
এল ------- মুলিয়ানের স্প্যান;
a1 ----- ইনস্টলেশন চলাকালীন ত্রুটি, মান 3 মিমি;
a2 ------ মুলিয়নের অক্ষীয় বিকৃতি, মান 2 মিমি;
এছাড়াও, চীন জাতীয় পর্দা প্রাচীর প্রযুক্তিগত কোড অনুসারে, সম্প্রসারণের ব্যবধানটি 15 মিমি এর চেয়ে কম হবে না।
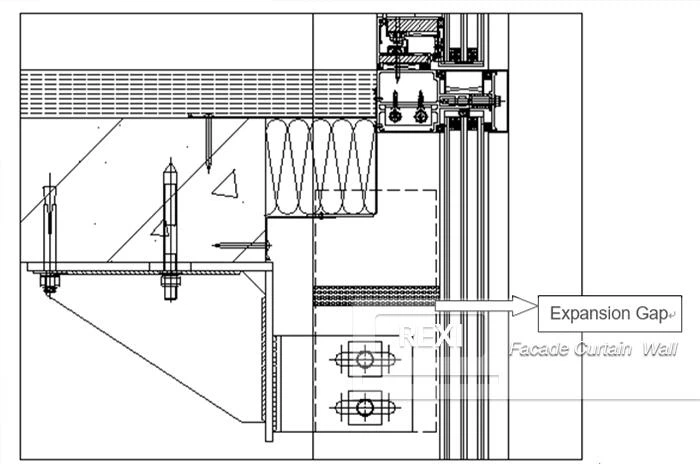
এই সম্প্রসারণের যৌথটি inোকানো ব্যবহার করে সংযুক্ত করা হয়েছে যা রেক্সআই ফ্যাক্টরির দ্বারা চীনায় তৈরি হয়েছিল, সুতরাং শীর্ষ মুলিয়নটি নীচের অংশে শিয়ার ফোর্স স্থানান্তর করতে পারে।

সম্প্রসারণের ব্যবধান
গরম ট্যাগ: কার্টেন ওয়াল, চীন, সরবরাহকারী, নির্মাতারা, কারখানা, দামের বর্ধনের গ্যাপ অফ মুলিয়ন





